マルヤマビル / 1階全フロア [No.9134] 新着 オススメ物件
| 物件名 | マルヤマビル / 1階全フロア | ||
|---|---|---|---|
| 物件所在地 | 新潟県新潟市中央区米山3丁目1−63 | ||
| 賃料(税別) | 敷金/礼金 | 749980/226868 | |
| 仲介手数料 | 管理共益費 | 1階 | |
| タイプ・構造 | 12ヶ月| | ||
| 間取り | 階数 | SRC造/- | |
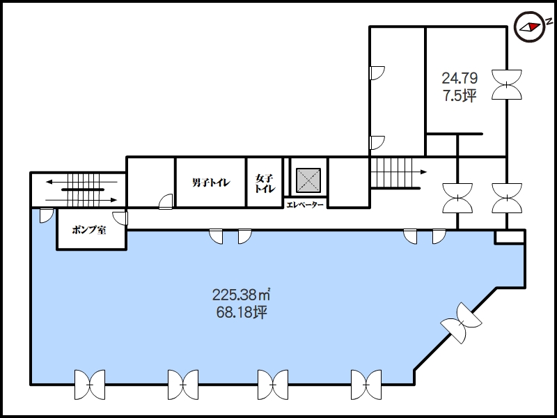
| 築年数 | 築50年 | 専有面積(㎡) | 37.91 |
| 契約期間 | 8階建 | 更新費 | 加入必須 |
| 保証手段 | 相談 | 保証費用 | 普通借家契約 |
| 鍵交換費 | 2年 | 清掃費用 | |
| 諸保険費 | 町内会費 | ||
| 駐車場 | 相談 | 駐車料金 | |
| 入居可能日 | 近隣 | 取引態様 | |
| 1km圏内 | 一般媒介 | ||
| 施設概要 | 共用トイレ・男女別・洋式・複数便器あり・給湯器 | ||
| 外部設備 | 共用シンク | ||
| 付帯設備 | |||
| セキュリティー | エアコン・エアコン2台以上 | ||
| 条件等 | インターネット可・ネット引込可 | ||
| コメント | 新潟駅を目前にした好立地なオフィスビル。新潟市内で交通量の多い場所の一つに数えられる交差点にあるため、その視認性は強力の一言。天井も高く、大きな前面ウィンドウなど開放感に優れた店舗造りが期待できます。 |
||
| 地図 | |||
| こだわりアイコン | 駐車場あり オフィス利用 塾・教室 | ||
| 更新日時 |
登録:2026年01月12日 23時44分 更新:2026年01月12日 23時44分 |
||
※建物写真や間取り図など実際のものとは異なる場合がございます。その際は現況の物件の通りとさせていただきますのでその旨ご了承ください。
※掲載の物件は他社不動産会社も取り扱っており、場合によっては契約済みとなっているものも御座います。空き状況について定期的に確認を行なってはおりますが、万一契約済みとなった物件につきましてはご理解とご了承下さいますよう宜しくお願い申し上げます。




