マルタケビル / 2-E [No.9129] オススメ物件
| 物件名 | マルタケビル / 2-E | ||
|---|---|---|---|
| 物件所在地 | 新潟県新潟市中央区東大通1丁目4−1 | ||
| 賃料(税別) | 敷金/礼金 | 非公開(要問合せ)/- | |
| 仲介手数料 | - | 管理共益費 | 2階 |
| タイプ・構造 | 12ヶ月|- | ||
| 間取り | - | 階数 | 鉄骨造/- |
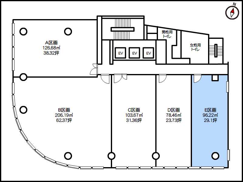
| 築年数 | 築7年 | 専有面積(㎡) | 96.22 |
| 契約期間 | 8階建 | 更新費 | 加入必須 |
| 保証手段 | - | 保証費用 | 普通借家契約 |
| 鍵交換費 | 2年 | 清掃費用 | - |
| 諸保険費 | - | 町内会費 | - |
| 駐車場 | ★即時 | 駐車料金 | - |
| 入居可能日 | - | 取引態様 | - |
| 1km圏内 | - | ||
| 施設概要 | 共用トイレ・男女別・洋式・男性専用トイレ・女性専用トイレ・複数便器あり | ||
| 外部設備 | 共用シンク | ||
| 付帯設備 | |||
| セキュリティー | エアコン・エアコン2台以上 | ||
| 条件等 | インターネット可 | ||
| コメント | 新潟駅の目前にあるレトロでおしゃれな外観のオフィスビルです。 | ||
| 地図 | |||
| こだわりアイコン | オフィス利用 | ||
| 更新日時 |
登録:2025年12月25日 14時55分 更新:2025年12月25日 15時56分 |
||
※建物写真や間取り図など実際のものとは異なる場合がございます。その際は現況の物件の通りとさせていただきますのでその旨ご了承ください。
※掲載の物件は他社不動産会社も取り扱っており、場合によっては契約済みとなっているものも御座います。空き状況について定期的に確認を行なってはおりますが、万一契約済みとなった物件につきましてはご理解とご了承下さいますよう宜しくお願い申し上げます。
















